3 POKOJE, KAMIENICA , PARK MIEJSKI, RYBAKI.

Mieszkanie na sprzedaż
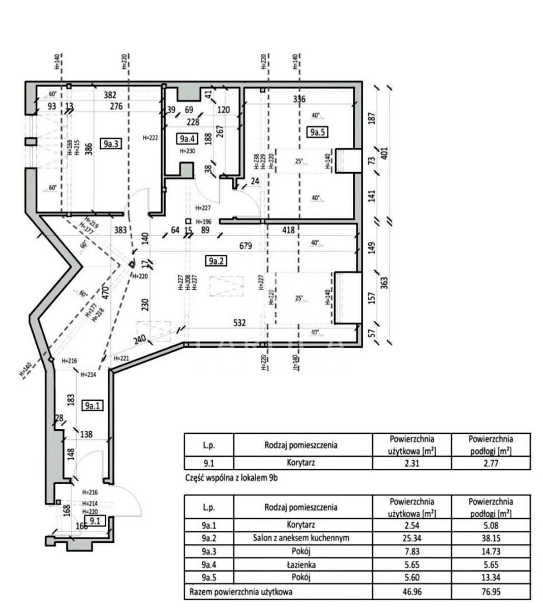
489 000,00 PLN , Pow. 76,95 m2
Drukuj ofertę
Drukuj ofertę
Typ nieruchomości:
Mieszkanie
Powierzchnia:
76,95 m2
Typ transakcji:
sprzedaż
Liczba pokoi:
3
Lokalizacja:
Toruń Rybaki
Rok budowy:
1905
Piętro:
4 na 4
Numer oferty:
LAR378952
Cena za m2:
6 354,78 PLN
Na sprzedaż wyjątkowe, 3-pokojowe mieszkanie zlokalizowane na 4 piętrze  w odnowionej kamienicy, położonej tuż przy wejściu do najstarszego Toruńskiego Parku Miejskiego na Rybakach.

Kupujący nie płaci podatku 2% PCC.

To oferta dla osób poszukujących niepowtarzalnego miejsca z charakterem, klimat kamienicy, nowoczesne wnętrze i wyjątkowa bliskość natury, a jednocześnie położonego o krok od ścisłego centrum Torunia. 

Cechy mieszkania:
Mieszkanie posiada 76,95 m² powierzchni po podłodze ze skosami, przy czym powierzchnia użytkowa wynosi 46,80 m². Przemyślany rozkład pomieszczeń zapewnia wygodę użytkowania oraz maksymalne wykorzystanie przestrzeni.
przestronny salon z aneksem kuchennym,
- dwie niezależne sypialnie,
- łazienka z wanną i WC,
- funkcjonalny przedpokój z dużymi szafami wnękowymi.

Stan techniczny:
Mieszkanie przeszło generalny remont - wszystkie elementy są nowe.
- na podłodze trwałe panele winylowe,
- nowe, energooszczędne okna,
- nowe instalacje, elektryczna oraz wodno-kanalizacyjna,
- budynek dwukrotnie docieplony z każdej strony,
- mieszkanie jest ciepłe i ekonomiczne w utrzymaniu,
- ogrzewanie z sieci miejskiej.

Lokalizacja:
jedynie 5 minut spacerem do Toruńskiej Starówki,
w bezpośrednim sąsiedztwie znajdują się wydziały UMK ,Matematyki i Informatyki oraz Katedra Meteorologii i Klimatologii - świetna propozycja inwestycji pod wynajem,
tylko 100 metrów do parku miejskiego, połączonego z malowniczym laskiem, gdzie dostępne są stawy, amfiteatr, fontanny, ścieżki spacerowe, tereny rekreacyjne przy Martówce, place zabaw, boiska wielofunkcyjne oraz tor saneczkowy.

Czynsz do wspólnoty wynosi ok.389 zł/miesiąc.

Zapraszam na prezentację i do kontaktu.
Fabian Mulewski
Tel: 690 020 283
Nr. Licencji 29006
f.mulewski@biurolaroca.pl

Opis oferty zawarty na stronie internetowej sporządzany jest na podstawie oględzin nieruchomości oraz informacji uzyskanych od właściciela, może podlegać aktualizacji i nie stanowi oferty określonej w art. 66 i następnych K.C.

Dodatkowe informacje:

1. Świadczymy bezpłatne doradztwo kredytowe.  Zadzwoń i sprawdź swoją zdolność kredytową z profesjonalistą (na rynku od 18 lat) - 690 020 207. 
Nasz doradca świadczy usługi również w terenie - może dojechać w umówione miejsce.


2. Wszystkie prezentacje są bezpłatne. Usługa pośrednictwa jest płatna w przypadku zakupu nieruchomości.

3. Opis oferty sporządzany jest na podstawie oględzin nieruchomości oraz informacji uzyskanych od właściciela, może podlegać aktualizacji.
Powyższa oferta ma charakter informacyjny i nie stanowi oferty handlowej w rozumieniu Kodeksu Cywilnego.

Nieprawidłowy adres E-mail